Баки и гидроаккамуляторы
рабочая температура 95°С • рабочее давление 3 бар • гарантия 4 года
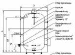
Предназначен специально для приготовления горячей воды тепловым насосом и солнечными коллекторами. рабочая температура 95°С ∙ рабочее давление max 6 бар ∙ гарантия 4 года
- возможность подключения нескольких источников тепла - возможно изготовление как с одним, так и с двумя теплообменниками - подключение к системе отопления и к солнечному коллектору одновременно - внутренняя поверхность встроенного резервуара...
Конвекторы
Конвекторы: комфортный обогрев помещенияКонвекторы - отличный выбор для дополнительного обогрева жилья!
Конвекторы для отопления домаОтопительный конвектор отличает высокая производительность, элегантный внешний вид. Также его можно запрограммировать, «руководить» им при помощи пульта дистанционного управления или включить в систему «умный дом».
Отопительный котел и независимость. Часть 1. Типы котлов
От двух стрессов — профилактического отключения горячей воды летом и начала отопительного сезона осенью — избавлены те, у кого дома свой котел. Кроме всем известных котлов газовых, на украинском рынке представлены и другие. Как и какой выбрать — читайте в этой статье.
Энергетика завтрашнего дня сегодня. Часть 1. Тепловой насос для дома
Во многих европейских странах тепловые насосы (ТН) давно считают выгодной альтернативой традиционным системам отопления на газе или жидком топливе. В Украине интерес к использованию ТН, наблюдается последних пять лет. С каждым годом растет и спрос, даже несмотря на сравнительно высокую стоимость первоначальных вложений.
Отопление
Комфорт и уют дома начинаются с систем отопления и водоснабженияГрамотно спроектированное оборудование для систем отопления и водоснабжения – залог уюта и комфортабельности жизни. Бесперебойное функционирование коммуникаций (канализация, отопление, водоснабжение) во многом зависит от выбранного оборудования и комплектующих, которые лучше купить в проверенном магазине, например, в интернет-магазине «Universyst», предлагаемая продукция которого обеспечит Ваш дом не только удобствами, но и безопасностью.
Выбор отопительного котла для дома Выбор отопительного оборудования для дома должен сводиться к критерию максимально экономичного и продуктивного варианта непосредственно для конкретного здания.
Асбест в настенных газовых котлах- добро или скрытая угроза?Благодаря высокой теплоизоляции и теплоотдачи, асбест массово используют во многих отраслях промышленности, включая котельное производство.


















